当前位置: 首页 > 产品大全 > 实验室污水处理设备系统安装图及安装作业指导书——与建筑物排水系统对接详解

实验室污水处理设备系统安装图及安装作业指导书——与建筑物排水系统对接详解

实验室污水处理设备系统安装图及安装作业指导书——与建筑物排水系统对接详解

实验室污水处理设备是保障科研安全、实现环保达标排放的关键设施。其安装质量直接关系到处理效果、运行稳定及合规性。本文将重点阐述污水处理设备系统与建筑物既有排水系统的对接安装,提供核心的安装图示意与作业指导。

一、 系统总览与安装图核心要素
一个完整的实验室污水处理系统安装图,应清晰体现设备本体、管道系统、电气控制与建筑物排水系统的接口关系。核心要素包括:

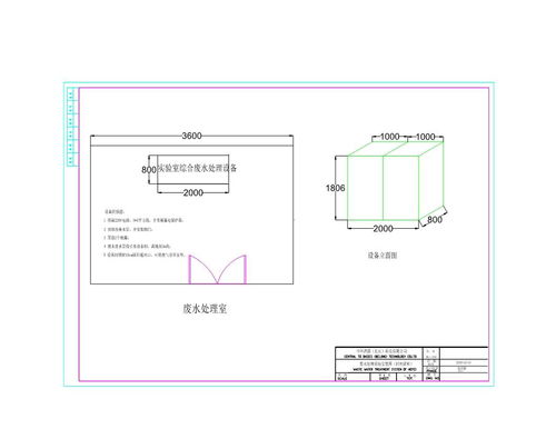
  1. 设备定位图:标明污水处理设备(如中和槽、氧化槽、沉淀槽、过滤单元、控制柜等)在实验室或设备间的具体位置、基础尺寸、间距及维护通道。
  2. 管道系统连接图:这是与建筑物排水对接的关键。需详细绘制:
  • 进水管道:从实验室各废水收集点(通风橱、洗手盆、实验器械排水口)汇入集水桶或调节池,再到处理设备进水口的管路走向、管径、坡度、材质(通常为UPVC、PP或耐腐蚀不锈钢)。
  • 处理工艺流程内部管路:设备各单元之间的连接。
  • 排放管道:处理达标后的清水排放口至建筑物污水总排管或指定监测池的最终连接。必须标明对接点、检查口、取样口位置。
  1. 电气与自控接线图:显示设备动力电源接入点、与控制系统的连线,以及可能的与楼宇监控系统的信号接口。
  2. 接口大样图:重点描绘设备排放口与建筑物排水立管或水平干管的连接细节,包括连接方式(如法兰、承插粘接)、支撑、密封及标识要求。

二、 与建筑物排水系统安装作业指导书

1. 安装前准备
- 现场勘察:确认建筑物排水总管位置、管径、材质、标高及可供接入的预留口或开孔位置。核实排水总管的承载能力与流向。
- 图纸会审:与建筑设计方、施工总包单位共同审核安装图,确保接口方案可行,符合建筑结构与管道规范。
- 材料与工具准备:准备符合设计要求的管材、管件、阀门、密封材料、支架、紧固件以及切割、焊接(或粘接)、检测工具。

2. 设备就位与基础
- 按图施工设备基础,确保水平、稳固,并完成设备稳装。设备排放口中心标高应精确测算,确保与排水总管顺畅连接,保持必要的排水坡度(通常≥1%)。

3. 管道连接关键步骤
- 进水段连接:从实验室废水源到设备,管道应明敷或置于防腐蚀管沟内,坡度朝向设备,避免死水段。穿越楼板或墙体需加装防水套管。
- 设备内部管路:按设备厂家指导连接,确保密封无泄漏。
- 排放口最终连接(核心工序)
a. 定位与切割:在建筑物排水总管指定位置精确测量开孔位置(通常在上半部,避免底部沉积物堵塞)。
b. 接口安装:采用标准的“三通”或“斜三通”管件接入总管。对于UPVC管,使用专用粘合剂承插连接;对于金属管,可采用法兰或焊接(需考虑防腐)。连接必须牢固、密封。
c. 支撑与固定:从设备排放口至总管的管段,必须设置独立、稳固的支架或吊架,防止管道重量及水流冲击力作用于设备接口或总管接口。
d. 标识与警示:在对接点附近明显位置,设置“实验室废水处理排放口”永久性标识。

4. 密封性测试与调试
- 管道系统安装完毕后,必须进行分段及整体压力测试或满水测试,检查所有接口,尤其是与建筑物总管的对接点,确保无渗漏。
- 接通水电,进行设备清水联动试车,观察排水是否通畅,流量是否匹配,有无倒灌或溢流风险。

5. 安全与合规要点
- 安全间距:设备及管道应与电气设备、热源保持安全距离。
- 应急排放:系统应设计有应急溢流管,并安全引至事故应急池或明确标识的应急排放点,严禁直接非法旁通。
- 合规验收:安装完成后,接口需经建设单位、监理方及环保相关部门共同验收,确保符合环评批复及建筑设计规范要求。

****
实验室污水处理设备与建筑物排水系统的无缝、合规对接,是系统成功运行的“最后一公里”。严格的安装图指导与规范的施工作业,是杜绝泄漏、保障处理效果、满足环保监管的根本。务必由专业技术人员施工,并做好全过程文档记录。


如若转载,请注明出处:http://www.jztwcniu.com/product/28.html

更新时间:2026-04-16 11:18:18